千葉市中央区 賃事務所付き倉庫

お問い合わせ番号:f11013-153478
賃事務所付き倉庫
千葉市中央区都町8
賃料 84.24万円(税込)
(坪単価:0.53万円)

~◆貸倉庫、貸工場専門サイト◆~
千葉の倉庫探し、工場探しは、
『ワークスタイル』へお任せ下さい♪
倉庫、工場 強化買取
管理費 -
保証金
解約引
-
-
敷金
礼金
5ヶ月
-
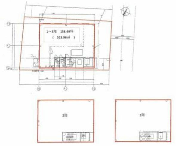
建物/専有
面積
523.96m2
(158.49坪)
土地面積 311.25m2
(94.15坪)
築年月 1996年2月
(平成8年2月)
駐車場 有り無料 所在階 1-3階 地上階数
地下階数
3階
-
構造 鉄骨造
現況 空家
入居/引渡 相談 
契約期間 3年(定期借家契約)
取引 仲介
物件登録日 2025年10月13日
情報更新日 2025年10月13日
■京葉道路沿い・貝塚ICから約1.2km
■エアコン・ミニキッチン・トイレ・エレベーター有り
※保証会社・保険要加入
千葉市中央区 賃事務所付き倉庫 のことならお気軽にご相談ください。
ワークスタイル(㈱スタイル・レゴ)
TEL:043-420-8742
営業時間:10:00-18:00
メールでのお問い合わせ

お電話の場合は「テナントショップを見ました。物件番号は < f11013-153478 > です」と伝えていただくとスムーズにお応えできます。